新築戸建て 奈良市法蓮町【新築収益物件】
おすすめポイント
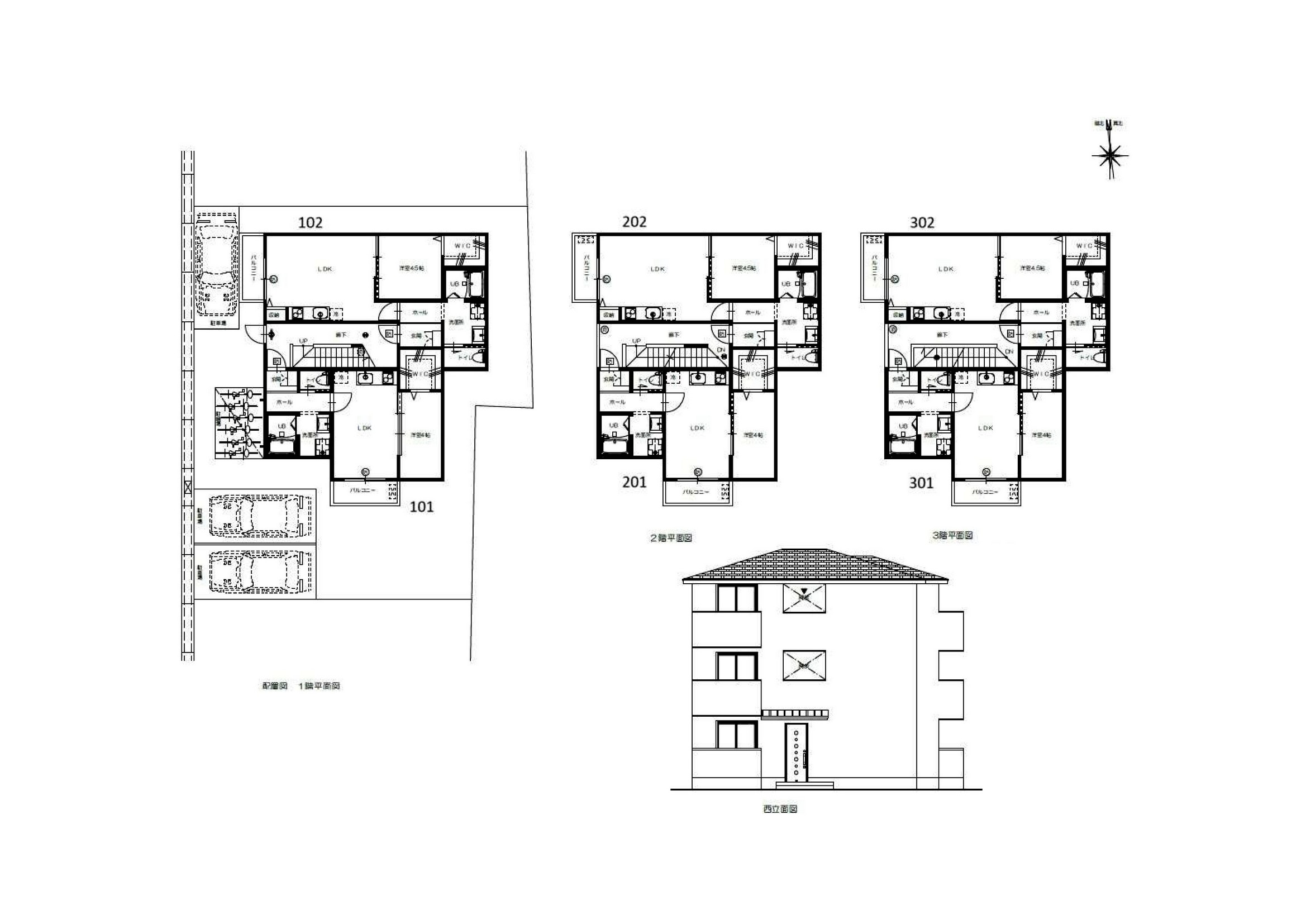
◆新築収益物件 SOLEIL be SELECT法蓮町Ⅲ
◆総戸数6戸(1LDKタイプ)
◆「近鉄奈良駅」徒歩18分
◆JR「奈良駅」徒歩18分
◆想定表面利回り 6.7%
概要
| 所在地 | 【新築収益物件】奈良県奈良市法蓮町 SOLEIL be SELECT法蓮町Ⅲ | ||
|---|---|---|---|
| 交通手段 | 近鉄奈良線「近鉄奈良駅」徒歩18分、JR「奈良駅」徒歩18分 | ||
| 価格 | 9,618万円 | 築年月 | 令和7年10月完成済 |
| 土地面積(m2/坪) | 202.45㎡/61.24坪 | 建物面積(m2/坪) | 241.14㎡(72.94坪) |
| 地目、用途地域 | 第一種住居地域 | 建ぺい率、容積率 | 40%(60) 200% |
| 建物構造 | 木造軸組工法3階建 | 間取 | 1LDK×6戸 |
| 排水、ガス | 上水道、下水道、電気、都市ガス | ガレージ | 有(3台) |
| 接道状況等 | 西 約6m | ||
| 現況 | 空家 | 引渡 | 相談 |
| 取引態様 | 仲介 | ||


